create your own web page for free

9 Mile Steel LLC

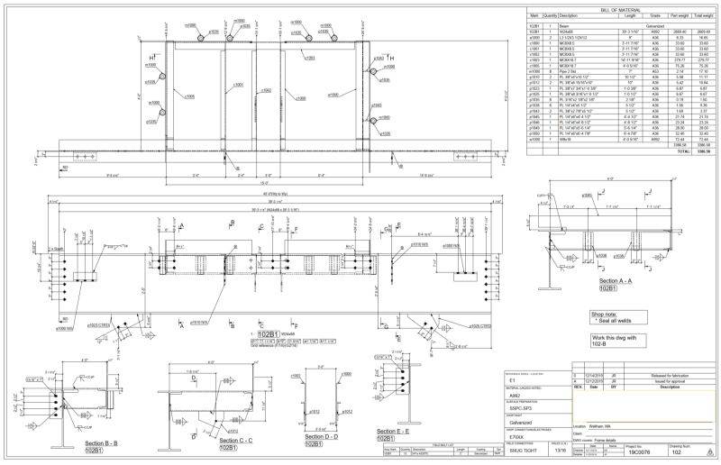
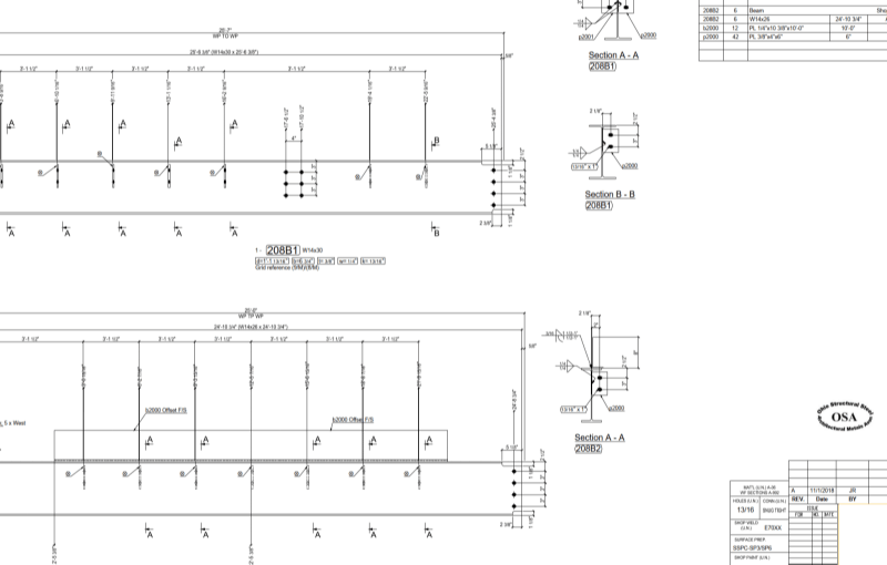
Steel detailing of structural steel and miscellaneous
18 years of steel detailing experience
8 years in business
Use of Advance Steel detailing software

About us:


Detailing of small to medium size projects.  Competitive detailing cost. Commercial or industrial projects

3D modeling in Autodesk Advance Steel

We adapt to your shop standards.

CNC files provided at no additional cost. Fabtrol, KISS files, dxf plate burner fiels.

Material reports, bolts lists.

Detailing following AISC, AGA, IBCstandards

Office is based in U.S.A. Cypress, TX

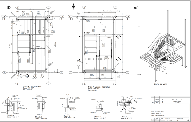
Some of our projects:


U-Haul Center of Groton, CT.  (Stairs & handrails)

UH Women & Children Center, OH (stairs & handrails)

Washington Village Phase, CT (structural steel & miscs)

Greenwich Country Day School, CT (structural steel & misc, https://www.gcds.net

UCFS Griswold Health Center, CT (structural steel, stairs)

American Mural Project (Structural steel)

Ashland City School, OH (structural steel & misc)

EC Scranton Library (Strutural steel, stairs & miscs)

Fremont Schools, Lutz Elementary, OH (structural steel & miscs)

Our Contacts

Address:

Cypress, TX

E-mail:

jose@9milesteel.com